101 Wolfe Circle, Harrisburg, PA 17112 Two Story
Representative photo only. Selections, features, and elevation may differ from the home under construction.
Home under construction – price is subject to change.
This beautiful two-story Arlington home is coming soon to our Autumn Ridge community.
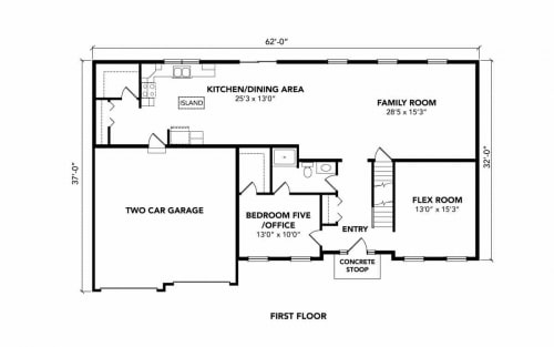
This 2,818 square foot, 5 bedroom, 3 bathroom home with an attached 2-car garage consists of the superior material and structural standards Fine Line Homes offers in all newly built homes, as well as aesthetic upgrades.
Upgrades/Features include:
- 9 ft ceilings on first floor.
- 24′ x 5′ covered front porch.
- Tile shower in Bath #2.
- Stainless Steel appliance package.
- Tile backsplash in Kitchen.
- Accent wall in Flex Room.
- Upgraded flooring throughout.
REQUEST MORE INFORMATION
Take a Virtual Tour
Take a virtual tour through the property without leaving the comfort of your home!
The Fine Line Advantage
Five Star Products
After 50 years of building homes, it is our duty to use the best materials to build your new home. We hold ourselves to a higher standard, which drives us to only use trustworthy products.
LEARN MORE
Up-Front Pricing
Have you ever seen a price advertised, only to find out that is not the real price? We don’t like that either. Get exact pricing for your home, without any hidden costs.
LEARN MORE
Flexible Home Plans
Think of our home plans as the beginning of your journey. Each plan can be customized to your specific needs. We think you should be able to customize your home how you want it.
LEARN MORE
We couldn't be happier with Fine Line Homes. From start to finish, the team has been outstanding to work with and the quality is superior. We highly recommend Fine Line Homes to anyone looking to build the home of their dreams.
Stephen & Kelli
